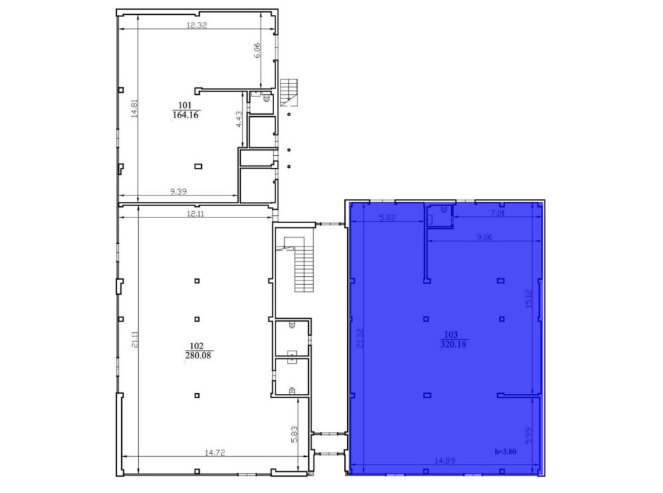
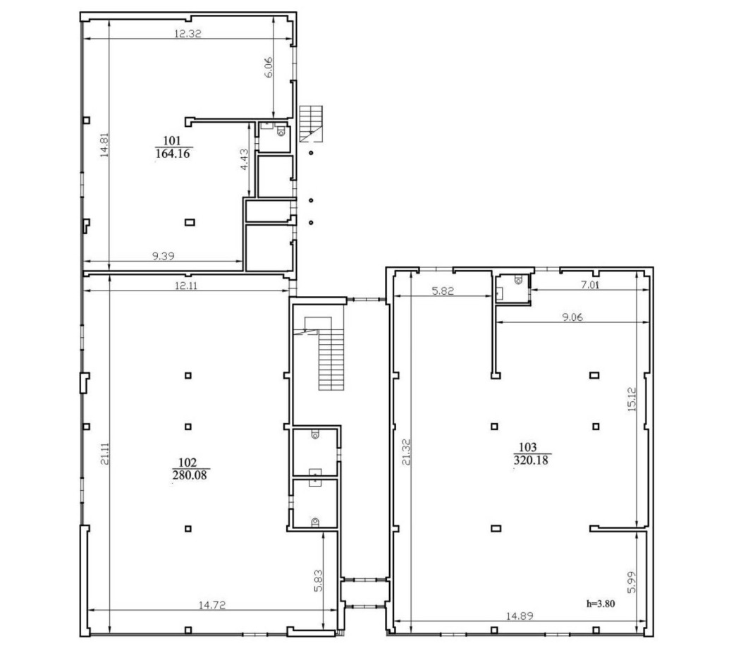
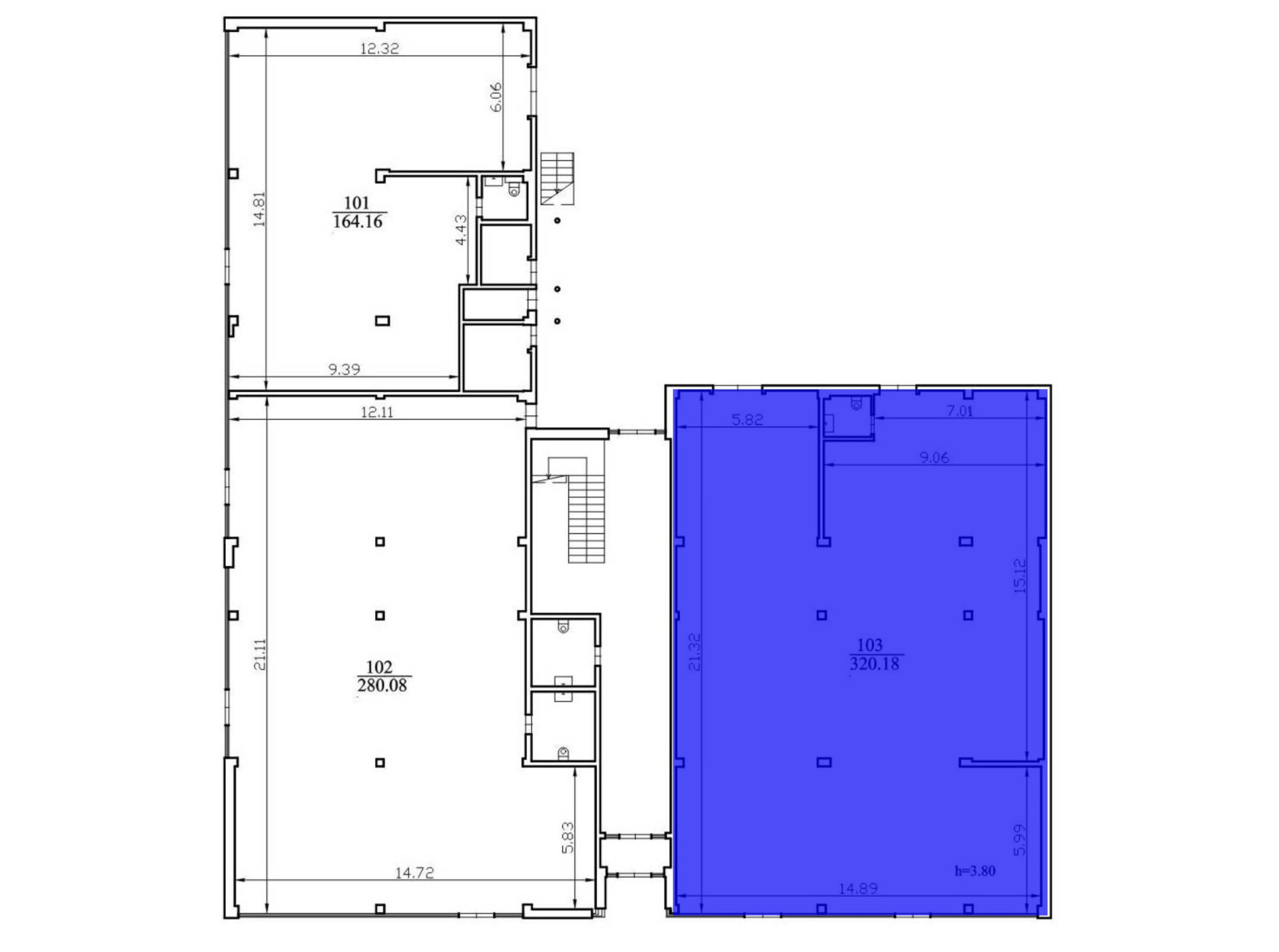
1 aukštas

Pirmojo aukšto patalpų paskirtis - komercinė/ sandėliavimo. 

Nuomojamų patalpų planas

Pirmojo aukšto patalpų paskirtis - komercinė/ sandėliavimo. 

Patalpas galima planuoti/ įrengti pagal poreikį, atskiriant prekybos ir sandėliavimo zonas. 

Susisiekite dėl patalpų nuomos

Į Jūsų užklausą atsakysime per 2-3 darbo dienas